Dar Mar
Dorms & Coworking
Location: Paje, Zanzibar
Year: 2025
Design phase: Built


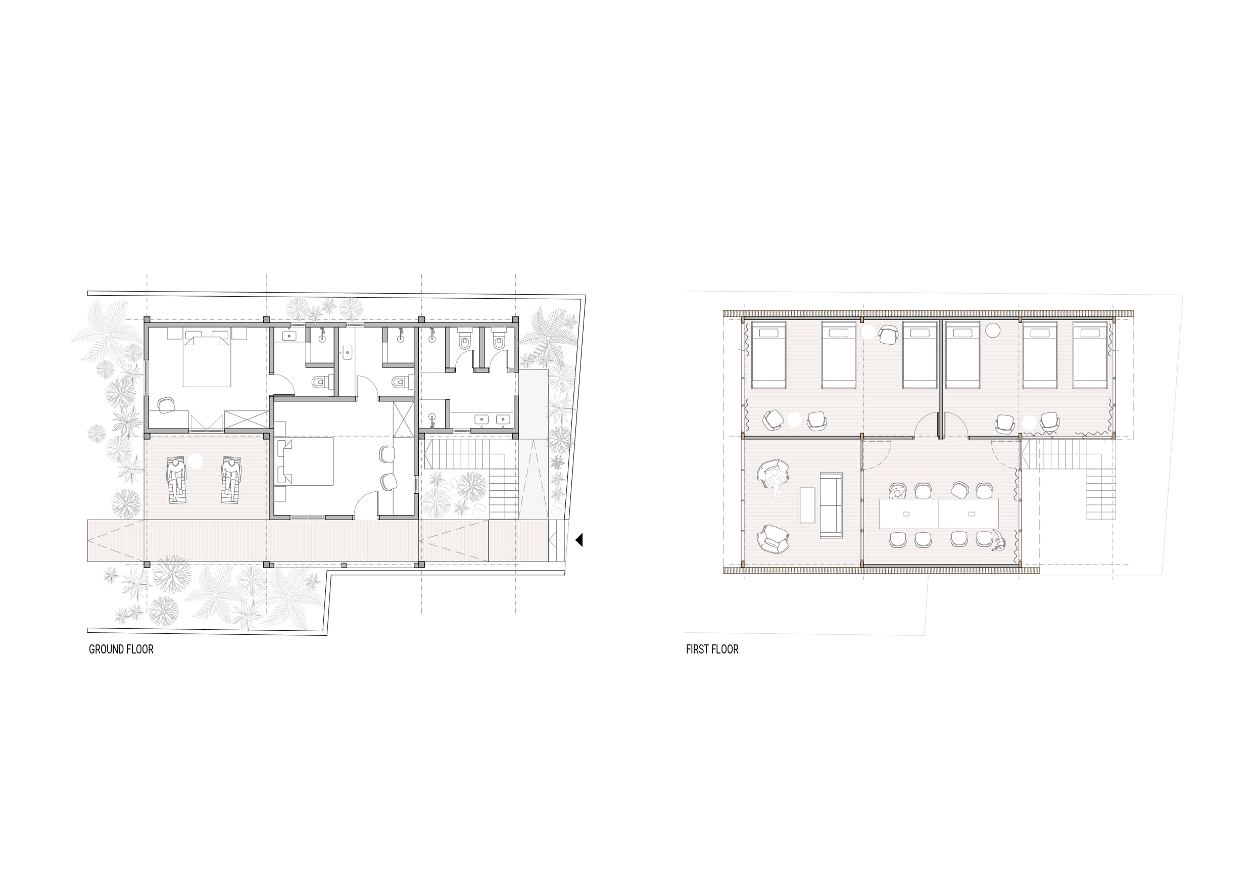
This project is a reconstruction of an existing small, traditional family house, transformed into shared accommodation as part of the Dar Mar Hostel.
The original structure was reinforced, and a completely new wooden upper structure was added above it. The intervention builds on traditional construction techniques and locally familiar materials, reinterpreted through a contemporary architectural approach.


The ground floor was remodeled to accommodate private rooms, organized within the existing footprint of the house. The upper floor hosts dormitory rooms and a coworking area, conceived as open, flexible spaces with generous natural light and cross ventilation.
Above, a spacious multi-use terrace serves as a shared outdoor area for rest, work, and social activities, strengthening the collective character of the building.
The project aims to create simple, generous spaces that respect the original structure while adapting it to new forms of shared living.










