Dar Mar
Hostel & Coworking
Location: Paje, Zanzibar
Year: 2021
Design phase: Built

From a Family House to a
Shared Living and Working Space
This project transforms a traditional Zanzibari family house into a small hostel with integrated coworking spaces. The intervention is based on minimal interior changes, preserving the original structure while improving functionality, comfort, and circulation.
The main house accommodates a hostel for 16 guests, while an existing outdoor unit is adapted into a private studio for 4 people.
The outdoor area is reorganized to include a swimming pool, lounge areas, a multifunctional platform, and bar and restaurant facilities, alongside coworking and service spaces.


The project demonstrates how existing buildings in Zanzibar can be adapted for contemporary use without losing their architectural character.


A wooden platform connects the pool, bar, and coworking areas, organizing the outdoor space while allowing flexible use. Integrated into the landscape and surrounded by vegetation, it supports circulation, gathering, and informal work or rest.





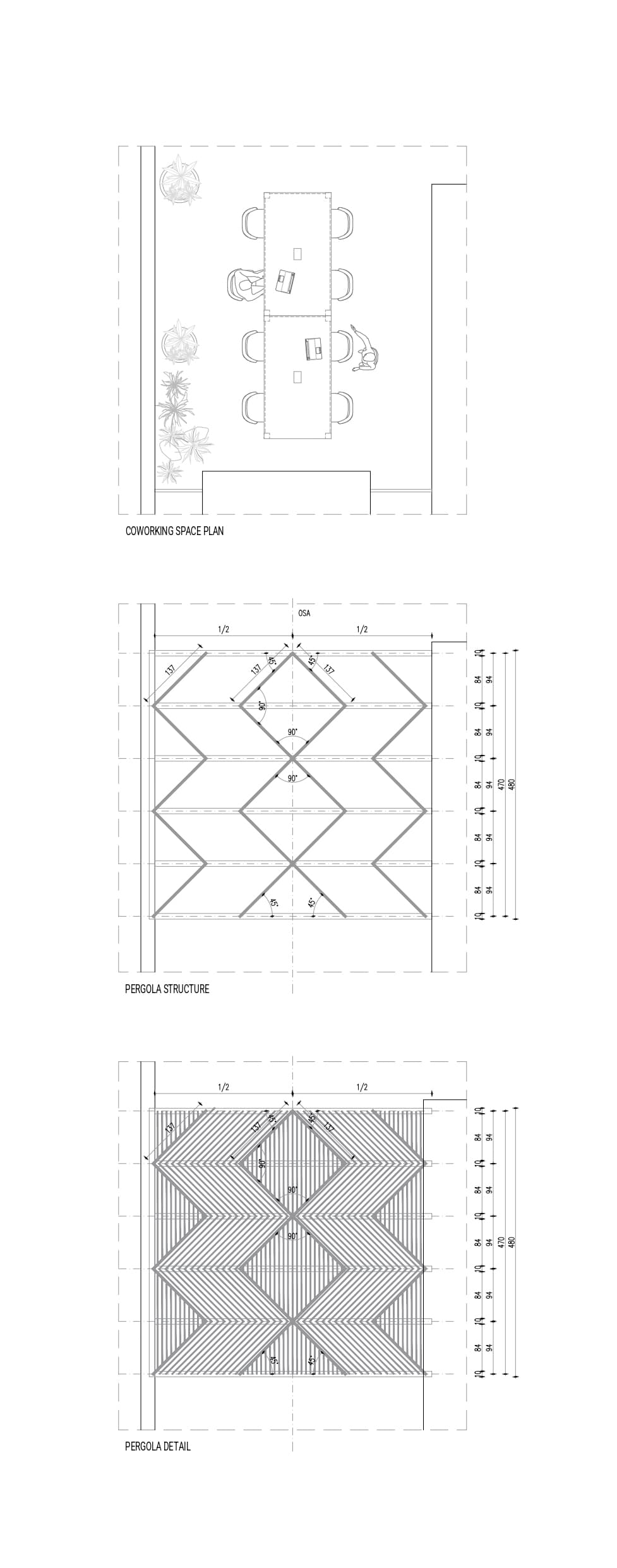
The coworking areas are designed as open, flexible spaces connected to the outdoors. Furniture and shading elements are made using local wood and simple construction techniques, allowing natural light, ventilation, and visual continuity with the garden. The design supports both focused work and informal social use, responding to the climate and everyday rhythms of the hostel.





All beds and built-in furniture were custom designed for the project and produced by local craftsmen using locally sourced wood. The robust yet simple construction ensures durability for intensive use, while the natural material and handmade details contribute to a warm, domestic atmosphere within the shared rooms.

The outdoor bathroom and services are designed as open-air spaces that combine privacy with direct contact with nature. Natural finishes, local materials, and traditional building techniques are used to create a tactile and climatic experience, reinforcing the connection between architecture, landscape, and daily routines.

