Villa DC
Location: Paje, Zanzibar
Year: 2023
Design phase: In process

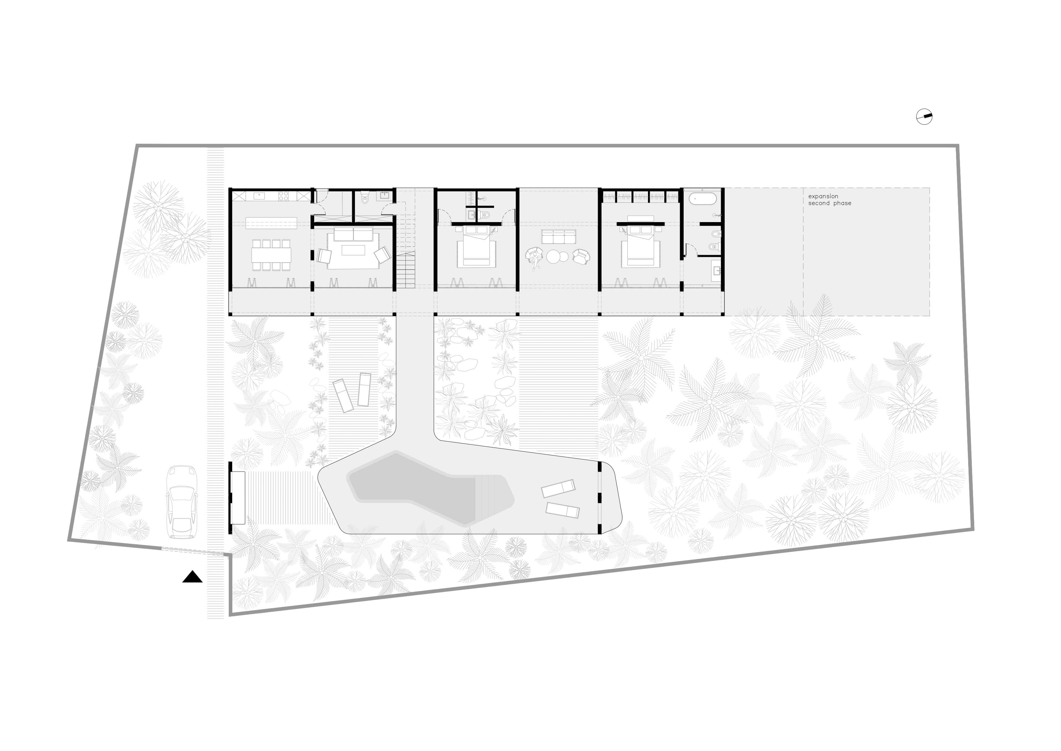
This project was designed for a young couple seeking a functional, flexible, and cost-conscious home. Their main request was a single-story house that could adapt over time, allowing for future expansions.
Given Zanzibar's topography and the need for perimeter walls, plots away from the sea often lack open views. The project responds by turning inward, creating its own visual focus through a private garden.
The house is organized as a linear volume along the site boundary. All main rooms face east—the most favorable orientation on the island—while service spaces are placed to the west, acting as a climatic buffer. A shaded corridor runs along the house, and carefully positioned openings allow for natural cross ventilation.
The program is arranged into distinct zones, providing privacy while defining a sequence of outdoor spaces. Public areas open toward the pool, while private rooms face quieter garden areas, offering varied views and atmospheres across the site.


